Commercial Investment

 

 

                        

   

 

 

        Home Page

       Hotel Investments

     Residential Investments

  Land Developments   Investors Page

There is little chance of a quick return to a housing boom despite the possibility of UK prices rising over the course of the year, surveyors say.

 

 

 

 Terms & conditions | Privacy statement | Disclaimer | Code of practice | Contact Us | About Us

 

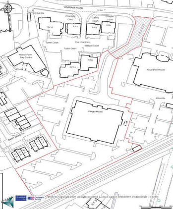
INTEGRA II

VICARAGE ROAD, EGHAM, TW20 9JZ

 

Description

INTEGRA II was originally constructed and completed in May 2000. The building comprises a three storey office with a flat roof with full height modern glass cladding with brickwork.

The glazing to the windows of the property is more than dequate to ensure that the noise levels within the office are kept to an acceptable standard.

The office accommodation comprises approximately 4,275 sq m (46,017 sq ft) arranged over ground and two upper floors.

 

Executive Summary

                    

• A South East office building located between junction 12 and 13 of the M25

• The property comprises 4,275 sq m (46,017 sq ft) of Grade A office accommodation

• There are 214 car parking spaces providing an excellent ratio of 1:215 sq ft

• Single let to the secure covenant of Oracle Corporation K Limited with Oracle Corporation as guarantor

• The property is let until 13th March 2021, providing an unexpired term of 11.5 years, subject to a break at 14th March 2016

• Current passing rent of Ł1,557,364 equating to Ł34.50 psf

• There are currently Ł746,985 of unclaimed Capital Allowances available to the purchaser

• Offers are sought in excess of Ł15,500,000 (Fifteen Million and Five Hundred Thousand Pounds) subject to contract and exclusive of VAT.

A purchase at this level reflects a net initial yield of 9.50%, after allowing for purchasers costs of 5.725%

• The asking price reflects a capital value of Ł337 per sq ft

• Site area 2.5 acres (1 ha)

                

The building benefits from the following specification

The office accommodation comprises approximately 4,275 sq m (46,017 sq ft) arranged over ground and two upper floors.

• Triple height modern reception atrium

• Fully accessible raised floors

• Category 11 lighting

• Four pipe chilled water with low pressure hot water air conditioning

• Suspended ceilings

• Male, female and disabled WC’s on each floor

• Two 13 person passenger lifts (1,000 kg)

• Double glazing

• Floor loading 5.5Kn/m2 (including 1 for partioning)

= 115 lbs/sq ft on first and second floors

 

 

 
      Home Page   Investors Page

       Hotel Investments

     Residential Investments

  Land Developments  Commercial Investments